Farm Design & Studies

Map overlay of a detailed land development project with various sections, roads, water bodies, and labeled natural features, including the Kfarnoun area and proximity to the Khabir and Nile rivers.

Farm Design and Feasibility Studies

We design farms from the ground up and prepare detailed feasibility studies based on real production data and field experience. Our work includes land assessment, farm layout, production systems, infrastructure planning, operational requirements, cost analysis, and production projections.

All designs are delivered with professional AutoCAD maps that are ready for direct implementation on site. Each project is adapted to the land, climate, water availability, and production goals to ensure practical and efficient farm operations.

In addition to design and feasibility studies, we offer implementation and on-site supervision services, depending on the client’s needs. This ensures that the project is executed correctly, on schedule, and according to the original design, resulting in a functional, efficient, and economically viable farm.

Sustainable and Functional Designs

We focus on sustainable and functional farm designs developed using professional AutoCAD drawings and accurate satellite imagery. Our process includes climate history analysis and site-specific data to ensure each plot is designed to be efficient, practical, and easy to operate, both in the short and long term.

Operation Analysis


We perform detailed operation analysis based on real farm data, field observations, and production records. By reviewing workflows, labor use, inputs, energy consumption, and costs, we identify inefficiencies and practical improvements that make operations more efficient, reduce waste, and improve overall farm performance.

Financial Analysis and ROI Projections

We provide detailed financial analysis and realistic ROI projections based on production data, operational costs, and market conditions. Our assessments help clients understand investment requirements, expected returns, and timelines, supporting informed decisions and financially viable agricultural projects.

Farm Design - Kabeela Farm - Lassa

This project covers the complete farm design of Kabeela Farm in Lassa, a 400,000 m2 farm (40 ha) developed from scratch. The design includes diverse grape varieties for wine production, mixed orchards of fruit and nut trees, vegetable production plots, and integrated eco-tourism areas. The layout was planned to be functional and efficient, while also being aesthetically balanced and designed to protect and support the local ecosystem, biodiversity, surrounding plant life, and wildlife.

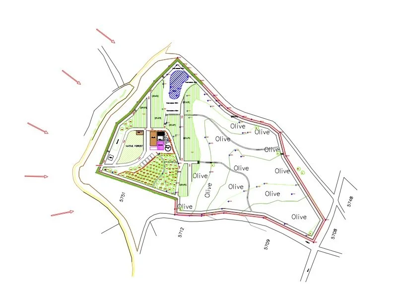
Farm Design - Ras Baalbek

This project covers the complete farm design of a diverse property in Ras Baalbek. The farm includes a vineyard, olive orchard, mixed orchards, vegetable gardens, and a diverse garden area. It also features a swimmable water pond designed for irrigation and fish farming, integrating both functionality and sustainability. The layout was planned to be efficient, productive, and regenerative, while supporting the surrounding ecosystem and creating a harmonious, aesthetically pleasing environment.

Design, Feasibility Study, Implementation, and Staff Training for a 200,000 m² Certified Organic Farm in Menjez, Akkar

This project encompasses the comprehensive design and feasibility study of a 200,000 m² certified organic farm in Menjez, Akkar. The farm includes open-field and greenhouse vegetable production, diverse orchards (including olive and fruit trees), chicken facilities for egg production, and aromatic plants. Our approach ensures a sustainable layout and efficient operations, complemented by staff training to empower the team in organic farming practices. This initiative aims to enhance local food production while promoting sustainable agriculture.

Map Design for a 75 Hectare Sustainable Farm and Food Processing Factory in Akkar, Lebanon

This expansive farm design integrates multiple productive elements, including a diverse orchard, vineyard, and large scale vegetable production. The farm also features facilities for raising cows, chickens, and pigs, along with a food processing factory to add value to the farm's output. Additionally, a guesthouse is incorporated to promote eco-tourism, creating a sustainable and regenerative farm model that combines agriculture, livestock, and hospitality.

Avocado Orchard - Hbouch

We designed a diverse avocado orchard that integrates multiple secondary crops to support the main trees. This includes nitrogen-fixing plants, aromatic herbs, and fruit species, which improve soil health, enhance biodiversity, and reduce pest and disease pressure. The orchard layout is optimized for efficient production, long-term sustainability, and ecosystem balance, ensuring high-quality avocado yields while maintaining a resilient and regenerative system.

Contact us.